Proposed Children Ministry Center







We are in the process of building an addition to house our growing Children's Ministry.
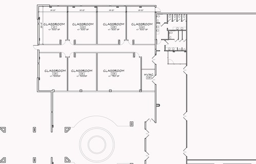
It will be built in what is currently our courtyard and will have 7 classrooms capable of servicing a total of at least 100 children from Nursery to 5th grade. Comprehensive plans are currently being drawn up and we hope to begin construction before the end of 2026. If you would like to contribute, to this project use the link below.
Click below and select "Building" fund.
It will be built in what is currently our courtyard and will have 7 classrooms capable of servicing a total of at least 100 children from Nursery to 5th grade. Comprehensive plans are currently being drawn up and we hope to begin construction before the end of 2026. If you would like to contribute, to this project use the link below.
Click below and select "Building" fund.
